Architecture
2010 : 11 1/2 x 11 1/2 x 5" wood, mdf, oxidized steel
A simple two-story house on the edge of the prairie and foot hills. The strong horizontal line of the stone retaining wall creates a backdrop for the elevated living space that appears to float above three studio spaces on grade used for wood working, steel fabrication and finishing. The living space above is oriented south toward the prairie and divided into an evening space on the west side and a morning space on the east side overlooking the pool. The house is traversed by an exterior stair that leads from grade to living space to roof and back down again to pool. The exterior stair activates an opened screened space on the south side of the house that lends shadow and depth to the overall massing as seen from the prairie, with the wooded slope of the foothills rising behind.
2011 : 11 1/2 X 11 1/2 X 5" wood, mdf, acrylic, blackened steel
The simple volume of the fly-tower is set within the void created by the stepped seating of the outdoor theater space. The side walls are sheathed in heavy steel plate, which creates a frame with a depressed walkway at the perimeter of the theater to enhance the relationship with the ground plane. The functional spaces serving the stage and theater are located underground and accessed stage left and right for the public and for service at the sloped perimeter of the terrain slightly outside the visible boundary of the model.
2105-16 : 11 1/4 x 13 3/8 x 4 1/2" wood, oxidized steel, metal tubing, stone
A complex courtyard house set at the edge between prairie and foothills. The courtyard is surrounded by a series of public and private rooms open to the courtyard on one side and the various views and sunlight available from the other. A sweeping vertical steel clad light tower and curving loft set off the composition in concrete that is firmly embedded in the ground plane. A pool excavated around a large boulder defines the approach from the prairie and serves to anchor the overall composition.
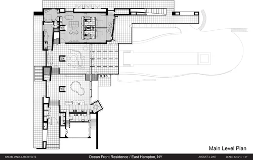
East Hampton, NY
Kurt Goodrich, Project Director Rafael Vinoly Architects
Program: The house was original designed by RVA and built in 1990 -1992 for an elderly single woman with an extensive art collection. Over the years the house changed owners several times. The Clients purchased the house in 2002 and in 2004 asked RVA to prepare plans for the renovation of the house to meet the needs of their future family, which now includes two young children. The Clients spend their summer weekends in the house. There is also a twelve room guest house directly behind the beach house, which the Clients used during construction and will continue to use for the overflow of visiting friends and relatives. The beach house contains over 15,000 square feet on three levels, which terrace up with the local topography from the Garage to the west through the Master Bedroom to the east. All public rooms in the house enjoy a view toward the ocean to the south, while most public rooms also enjoy a view north toward the front lawn.
Materials: The palette of materials includes reinforced concrete walls, steel and wood framing, stainless steel and glass window walls, stone and teak flooring, and teak millwork throughout. The aluminum clad south curtainwall, which supports the roof, was replaced with a new solid stainless steel system for better durability with the respect to the ocean climate and new glazing to enhanced energy performance and provide visual clarity.
Construction: The house was built under a Construction Manager as Constructor form of agreement by Fountainhead Construction, of Bridgehampton, NY. There were a total of four Owner’s Representatives engaged by the Clients during the course of construction to assist in the adminstration of the project. Construction began in the Spring of 2006 and the Clients took occupancy in the Summer of 2009. The final punch list was completed by Spring 2010.
Budget: In 2007 RVA revised the estimate for hardcosts prepared by VJ Associates from $9.7 Million to a new low/high budget of $16.7 to $17.3 Million, following an extensive Value Engineering phase approved by the Clients. The final hardcosts came in on budget at $17.5 Million dollars, which included several additions to the scope of work by the Clients.
Design Consultants:
Structural: Carlos Soubie of RVA; Thornton Tomasetti
MEP Engineering: JMV Engineers
Lighting: Wagner Architectural Lighting/Davis McKiernan
Civil/Hydrology: PW Grosser Engineers
Building Envelope: SGH
Concrete Restoration: Reginald Hough
Automation Engineer: Electro-Kinetics
Audio Visual: Audio Command Systems
Security Systems: Intelli-tec Engineering
Acoustical: Cerami Associates
Pool Consultant: John Tortorella
Specifications: Robert Schwartz Assoc
Cost Estimating: VJ Associates
Interiors: William T. Georgis Architects
Abu Dhabi/UAE
Kurt Goodrich: Project Director / Rafael Vinoly Architects
Program: Located in a new ocean-front resort being developed for 120,000 people outside Abu Dhabi, United Arab Emerites. The 33-Story two million square foot mixed-use building will provide 73,000 square feet of Offices; 287,000 square feet of Hotel, Convention, and Ballroom facilities; and 892,000 square feet of Luxury Residential and Restaurant spaces, as well as a 29,000 square foot Penthouse Health Club. Below ground parking will accommodate approximately 2,000 cars with extensive shipping and receiving facilities segregated to individually accommodate the various users groups.
Materials: The palette of materials includes reinforced concrete columns and shear walls, post-tensioned slabs, aluminum and glass curtain walls and window walls, stone paving, and a variety of materials for flooring and mill work depending on use. The aluminum cladding will incorporate a number of shading devises to reduce solar heat gain and enhance the building's energy performance.
Construction: Fast Track Construction began in 2008 and was scheduled for completion in 2011. The first stage of construction was land fill of the sea to provide suitable building area on the ocean side of the existing interstate freeway connecting Abu Dhabi with Dubai. Landfill was followed by re-excavation of the site, foundation work and the surrounding infrastructure, including the main bridge providing access through the middle of the building/site to the remainder of the development. Foundations were to be followed by assembly of the monumental truss spanning the central roadway as well as the building's concrete cores and superstructure. Once the monumental truss was assembled it would be jacked into place and used as the base for completion of the upper level framing for the building.
Design Consultants:
Owner: ALDAR Properties/UAE
Const Managment: Laing O'Rourke/UK
Master Plan: Esquisse Studio/Australia
Infrastructure: Cansult Maunsell/UAE
Architect of Record: AEC/UAE
Traffic: Domier/DE & Phili Habib/USA
Geotech: Hyder/UAE & MRCE/USA
Value Eng: Robert Bird/Australia
Wind Tunnel: RWD/USA
Code: Hughes Associates/USA
Structural: TTA/USA & IETC/Egypt
MEP: Cosentini/USA & Ian Banham/UAE
Lighting: One Lux Studio/USA
Building Envelop: Heitman Assoc/USA
Concrete: Reginald Hough/USA
Landscaping: UDAW/Australia
Vertical Transportation: VDA/USA
Materials/Waste: Lerch Bates/USA
Acoustical: Papadimos Group/USA
Specs: Robert Schwartz Assoc/USA
Cost Estimating: Northcroft ME/UAE
Indianapolis, Indiana
Kurt Goodrich: Project Designer / Flad & Associates
Program: A new Discovery Chemistry and Administration Building fronting the Eli Lilly Corporate Headquarters Campus adjacent to downtown Indianapolis. The building provides 270,000 square feet of floor area on five levels and features a dramatic four-story atrium, which serves not only as the building’s main entrance, but as the southern termination of the extensive underground pedestrian system for the entire Lilly Corporate Center as it emerges from underground to meet the landscaped garden fronting the campus and Building 87. The atrium also provides a much needed link between Building 87 and the adjacent research builidng via pedestrian bridges at all four levels.
Materials: Steel framing on a cast-in-place foundation, with composite metal decks and cast-in-place concrete cores. Exterior walls are comprised of 2” granite cladding factory mounted on steel backup panels anchored to the building steel framing with steel stud enclosure walls and weather proof sheathing infill, deep set aluminum and glass window walls, aluminum panels and louvers at the exposed cores, and extensive landscape plantings and systems throughout the site. The interior palette includes stone flooring at the Ground Level and Lilly standard carpeting at the upper levels, with dywall and plaster vertical surfaces highlighted by granite veneer cladding at the building columns and core and anigre wood paneling at the plaza entrances. The adjacent laboratories are fit out with metal casework, high performance composite sheet flooring and flexible ceilings and support systems to accommodate adjustments to future research needs
Construction: Built under a Construction Management form of Agreement with Turner Construction. Design Services began 1999 with construction completed Fall 2004.
Budget: Withheld.
Design Consultants:
Structural Engineer: Flad & Associates
MEP Engineer: AEI (Flad Alliance) Lighting: AEI (Flad Alliance)
AV/Telecom: AEI (Flad Alliance)
Landscape Architect: Flad & Associates
Interiors: Flad & Associates
Specifications: Flad & Associates
Wind/Air Quality: RWDI
Cost Estimating: Faithful & Gould
Construction Manager: Turner Construction Company
New York, NY
Kurt Goodrich: Project Designer & Manager / GKA, PC
Program: Project involved the conversion of an existing nine-story, 20,000 square foot 1920’s era Office Building into a Boutique Hotel with 70 Guestrooms and Ground Floor Retail space. The Hotel, enjoys a prominent location on the corner of Fifth Avenue and 35th Street opposite the Empire State Building, at the South end of the Fifth Avenue Special Purpose District.
The project features a new structurally glazed storefront that overlays the existing corner of the building with the dual purpose of providing needed visibility for the Hotel Lobby and Retail Space, as well as a timely update to the more traditional building above.
Materials: Masonry and aluminum panel clad steel frame construction with steel joists and concrete floor slabs throughout. Structural glazed frameless storefront system at the Ground Floor Retail and Hotel Lobby storefronts, with aluminum and glass replacement window system at the hotel floors above.
Construction: Design Services began in early 2005 with construction completed Fall 2006.
Design Consultants:
Owner: McSam Hotel Group LLC
Structural Engineering: GKA, PC
MEP Engineering: GKA, PC
Lighting Design: GKA, PC
Specifications: Robert Schwartz Assoc
Interiors: Lisa Knight Associates
Construction Manager: Tritel Const